You’ve found the new card catalog function of the Bullnose Library. This is under construction and doesn’t have all of the cards in the catalog yet. But please feel free to try it out and let us know what you think.
Note: Internal grid filters are legacy. Use the main filter bar above.
No cover
Electric Fuel Pump Control
No cover
Digital Clock

1983 F-Series

2024 Truck Show

1981 Pickup & Bronco Advert
No cover
Start & Ignition

1984 FORD F-150 XLT PICKUP
No cover
Tailgate Power Window & Defrost
No cover
EGR System Description & Testing

81-1-10 FM Radio Interference

CALIBRATION: 4-53F-R00

Engine Superchargers
No cover
Noise/Vibration/Ride/Squeaks/Rattles

87-21-10 EEC-IV Diagnostics
No cover
N606689-S2
No cover
Sway Bar
No cover
Fuel Tank Selector & Gauges (Gas)

1982 Bronco
No cover
Fuel Senders & Pumps

45260-S2
No cover
N610939
No cover
Turn, Stop, & Hazard Lamps
No cover
Fuel Pump Interchange
No cover
Rear Springs
No cover
Standard Wire & Color Codes
No cover
Entrant #49: Chris’ 1985 Bronco

Connectors
No cover
N606676-S36

Automotive Maintenance

Air Inlet Control Systems
No cover
Section 20 – EEC-IV Light Trucks
No cover
Speed Control

1985-87 Bronco Fuel System Illustrations
No cover
Spring Codes
No cover
Digital Clock
No cover
Power Windows
No cover
N606677-S36
No cover
Test Page
No cover
Section 22 EEC-IV 4.9L Light Truck

1980 Ford Recreational Vehicles
No cover
Fuel System Part #’s
No cover
Hood Latch
No cover
Push Bars
No cover
Warning Indicators & Seatbelt Warning

CB Radio

Carburetor Interchange

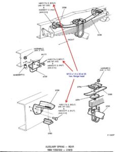
Auxiliary Springs
No cover
Section 5 – Catalyst & Exhaust Systems

83-25-21 Air Cleaner Sealing
No cover
Power Mirrors
No cover
Name Plates
No cover
Rear Suspension

1984 Ford Trucks

Bullnose VIN Decoder

Power Steering Pump – Saginaw

Automatic Transmission Applications
No cover
HVAC Systems
No cover
N610019-S
No cover
Section 7 – Evaportive Emissions Systems

87-03-07 EEC-IV Driveability TSB Summary
